صفحه اول » محصولات » ژنراتور » SD-SC دیزل ژنراتور روباز (69-900 کیلوولت آمپر)

SD-SC دیزل ژنراتور روباز (69-900 کیلوولت آمپر)

SD-SC دیزل ژنراتور روباز (69-900 کیلوولت آمپر)

دیزل ژنراتورهای سری H
این ژنراتورها با موتورهای دیزل سری H به حرکت در می آیند و توسط شرکت موتور دیزل شانگهای طراحی و ساخته شده اند. این نوع ژنراتورها در 6 مدل مختلف تولید می¬شوند که توان نامی آنها در بازه 50-150 کیلووات است. هر ژنراتور دارای یک دستگاه استارت خودکار و یک کابینت سوئیچ ATS است. این اجزاء امکان استارت خودکار و تعویض بین ژنراتورها را می¬دهد. همه این دستگاه¬ها تنظیم دقیق ولتاژ، عملکرد دینامیک، کمترین اعوجاج موج ولتاژ، کارآیی بالا و قابلیت اطمینان دارند. به لطف سیستم جرقه زنی باتری بدون نیاز به نگهداری مداوم، ژنراتورها را می توان به سادگی با پر کردن مخازن سوخت و خنک کننده و زدن کلید پاور استارت زد.

پارامترهای فنی اصلی
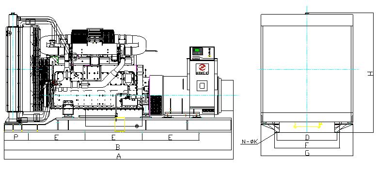
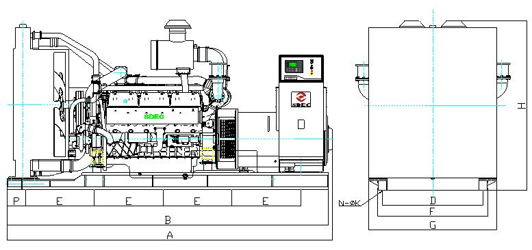
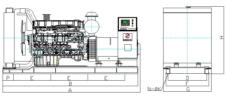
ردیف مدل توان در حالت آماده به کار (KVA) توان اصلی (KVA) ابعاد (mm) نوع موتور
1 SD-SC63 69 63 1940*940*1358 SC4H95D2
2 SD-SC80 88 80 1980*940*1358 SC4H115D2
3 SD-SC100 110 100 1985*1000*1470 SC4H160D2
4 SD-SC125 138 125 1985*1000*1470 SC4H180D2
5 SD-SC160 176 160 2400*1050*1535 SC7H230D2
6 SD-SC188 207 188 2400*1050*1535 SC7H250D2
7 SD-SC200 220 200 2540*1120*1620 SC9D280D2
8 SD-SC250 275 250 2700*1120*1655 SC9D340D2
9 SD-SC313 344 313 3220*1380*1755 SC13G420D2
10 SD-SC350 385 350 3220*1380*1755 SC12E460D2
11 SD-SC375 413 375 3200*1385*1850 SC12E500D2
12 SD-SC450 495 450 3550*1600*2205 SC25G610D2
13 SD-SC500 550 500 3570*1600*2205 SC25G690D2
14 SD-SC563 619 563 3570*1600*2205 SC27G755D2
15 SD-SC625 688 625 3570*1750*2205 SC27G830D2
16 SD-SC682 750 682 3570*1750*2205 SC27G900D2
17 SD-SC750 825 750 3800*1410*1880 SC33W990D2
18 SD-SC900 990 900 3800*1410*1880 SC33W1150D2

* پارامترهای بالا تنها برای مرجع بوده و ممکن است بدون اعلام قبلی تغییر کنند.

دیزل ژنراتورهای سری D
دیزل ژنراتورهای سری D با موتورهای با کیفیت شرکت موتور دیزل شانگهای به حرکت در می آیند. ژنراتورهای سری D در 3 مدل مختلف با توان نامی در بازه 160-200 کیلووات ساخته می شوند. هر ژنراتور دارای یک دستگاه استارت خودکار و یک کابینت سوئیچ ATS به صورت انتخابی است. این اجزاء امکان استارت خودکار و تعویض بین ژنراتورها را می¬دهد. کارآیی هدف تمام دستگاههای تولید نیرو است و ژنراتورهای سری D ما کارآیی بی نظیر همراه با عملکرد دینامیک و قابلیت اطمینان ارائه می کنند که برای استفاده به عنوان منبع تغذیه پشتیبان یا منبع توان اصلی مناسب است.

دیزل ژنراتورهای سری G
شرکت موتورهای دیزل شانگهای ژنراتورهای سری G را برای عملیات تولید قدرت در مقیاس بزرگ تولید می کند. هر کدام از این دستگاه های الکتریکی دارای یک دستگاه جرقه زنی خودکار است و می توان آنها را به صورت انتخابی به یک کابینت سوئیچ ATS مجهز کرد. این قطعات امکان جرقه زنی خودکار و تعویض بین ژنراتورها را فراهم می کند. تنظیم دقیق ولتاژ، عملکرد دینامیک، اعوجاج حداقلی موج ولتاژ، و قابلیت اطمینان این دستگاه دلیل محبوبیت آن در بازارهای بین المللی است. این ژنراتورها به لطف سیستم جرقه زنی باتری بدون نیاز به نگهداری مداوم، تنها با پر کردن مخازن سوخت و خنک کننده و زدن کلید پاور روشن می شوند.

دیزل ژنراتورهای سری W
دیزل ژنراتورهای سری W توسط شرکت موتورهای دیزل شانگهای برای ارائه قدرت با کارآیی بالا برای عملیات تولید در مقیاس بزرگ طراحی و تولید شده است. ژنراتورهای سری W دارای توان نامی بی نظیر 600 کیلووات با توان موتور 660 کیلووات هستند. این ژنراتورهای ویژه کارهای سنگین مجهز به سیستم جرقه زنی خودکار است و امکان انتخاب برای نصب یک کابینت سوئیچ ATS به منظور تعویض بین ژنراتور را دارد. هر کدام از این دستگاه ها قابلیت اطمینان بالایی داشته و دارای سیستم جرقه زنی باتری بدون نیاز به نگهداری مداوم هستند که امکان روشن شدن دستگاه را به آسانی فراهم می کنند.

دیزل ژنراتورهای سری E
دیزل ژنراتورهای سری E توسط شرکت موتورهای دیزل شانگهای به طور اختصاصی برای تولید قدرت با قابلیت اطمینان بالا به عنوان سیستم تولید توان اصلی یا پشتیبان طراحی شده اند. هر کدام از این دستگاه ها به سیستم استارت خودکار و کابینت انتخابی سوئیچ ATS مجهز هستند. این اجزاء امکان استارت خودکار و تعویض بین ژنراتورها را فراهم می کنند. این ژنراتورها با توان نامی 300 کیلووات، برای سناریوهای کاربردی مختلفی مناسب اند. این دستگاه ها دارای تنظیم دقیق ولتاژ، عملکرد دینامیک، کمترین اعوجاج موج ولتاژ، کارآیی بالا و قابلیت اطمینان هستند.

شاخص های عملکرد الکتریکی
ولتاژ فرکانس
انحراف حالت پایدار - % انحراف حالت گذرا - % مدولاسیون - % زمان بازیابی - ثانیه افت فرکانس - ثانیه باند فرکانسی حالت پایدار - % انحراف حالت گذرا زمان بازیابی - ثانیه
≤±2.5 -20~+25 0.3 ≤6 ≤5 ≤1.5 -10~+12 ≤5
بازه ولتاژ: بازه تنظیم ولتاژ در حالت بی باری 95% تا 105% ولتاژ نامی است

نکات مهم:
1. ژنراتورهای بالا، مگر در شرایطی که به گونه ای دیگر نیاز باشد، از نوع استارت خودکار با ولتاژ 400 ولت و فرکانس 50 هرتز هستند.
2. ژنراتورهای بالا می توانند به صورت عملکرد موازی خودکار و همچنین استارت و تعویض خودکار طراحی شوند.

صفحه اصلی