
ژنراتورهای دریایی سری H 50- 150 کیلووات ژنراتورهای استقامتی دریایی سری H توسط شرکت موتور دیزل شانگهای با استفاده از موتورهای دیزل دریایی سری H برای به حرکت در آوردن اجزاء ژنراتور تحریکی بدون جاروبک توسعه داده شده است. این ژنراتور قابل اطمینان، کم حجم، و بسیار کارآ است. ژنراتورهای دریایی به صورت ویژه طراحی شده اند تا سیستم های الکتریکی موجود در کشتی های دریایی همچون یدک کش ها، قایق های ماهیگیری و قایق های مسافری را تغذیه کنند.
پارامترهای فنی اصلی| مدل | خروجی نامی | خروجی در حالت آماده به کار | مدل موتور | مدل ژنراتور | جریان نامی | مصرف سوخت g/kw.h | ابعاد کلی mm | وزن Kg | ||
| KW | KVA | KW | KVA | |||||||
| D50S3GC | 50 | 62.5 | 55 | 68.8 | SC4H95CF2 | MP-H-50-4 | 90A | ≤204 | 1618*766*1160 | 849 |
| D50S3SC | 50 | 62.5 | 55 | 68.8 | SC4H95CF2 | SB-HW4.D-50 | 90A | ≤204 | 1618*766*1160 | 843 |
| D64S3GC | 64 | 80 | 70 | 87.5 | SC4H115CF2 | MP-H-64-4 | 115A | ≤204 | 1651*766*1160 | 887 |
| D64S3SC | 64 | 80 | 70 | 87.5 | SC4H115CF2 | SB-HW4.D-64 | 115A | ≤204 | 1663*766*1160 | 938 |
| D80S3GC | 80 | 100 | 88 | 110 | SC4H160CF2 | MP-H-90-4 | 144A | ≤198 | 1748*766*1160 | 1064 |
| D80S3SC | 80 | 100 | 88 | 110 | SC4H160CF2 | SB-HW4.D-80 | 144A | ≤198 | 1708*766*1160 | 1059 |
| D90S3GC | 90 | 112.5 | 100 | 125 | SC4H160CF2 | MP-H-90-4 | 162A | ≤198 | 1748*766*1160 | 1064 |
| D90S3SC | 90 | 112.5 | 100 | 125 | SC4H160CF2 | SB-HW4.D-90 | 162A | ≤198 | 1750*766*1160 | 1102 |
| D100S3GC | 100 | 125 | 110 | 137.5 | SC4H180CF2 | MP-H-100-4 | 180A | ≤198 | 1757*766*1160 | 1080 |
| D100S3SC | 100 | 125 | 110 | 137.5 | SC4H180CF2 | SB-HW4.D-100 | 180A | ≤198 | 1780*766*1160 | 1140 |
| D120S3GC | 120 | 150 | 132 | 165 | SC7H230CF2 | MP-H-120-4 | 217A | ≤195 | 1988*785*1312 | 1385 |
| D120S3SC | 120 | 150 | 132 | 165 | SC7H230CF2 | SB-HW4.D-120 | 217A | ≤195 | 2053*785*1312 | 1323 |
| D150S3GC | 150 | 187.5 | 165 | 206.3 | SC7H250CF2 | MP-H-150-4 | 271A | ≤195 | 1988*785*1312 | 1445 |
| D150S3SC | 150 | 187.5 | 165 | 206.3 | SC7H250CF2 | SB-HW4.D-150 | 271A | ≤195 | 2023*785*1312 | 1390 |

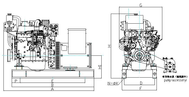
| مدل | A | B | D | E | F | H | H1 | G | P | N | K |
| D50S3GC | 1618 | 1470 | 545 | 1160 | 620 | 1160 | 410 | 766 | 150 | 4 | 24 |
| D50S3SC | 1618 | 1470 | 545 | 1160 | 620 | 1160 | 407 | 766 | 150 | 4 | 24 |
| D64S3GC | 1651 | 1470 | 545 | 1160 | 620 | 1160 | 410 | 766 | 150 | 4 | 24 |
| D64S3SC | 1663 | 1470 | 605 | 1160 | 680 | 1160 | 407 | 766 | 150 | 4 | 24 |
| D80S3GC | 1748 | 1600 | 545 | 1160 | 620 | 1160 | 410 | 766 | 150 | 4 | 24 |
| D80S3SC | 1708 | 1470 | 605 | 1160 | 680 | 1160 | 407 | 766 | 150 | 4 | 24 |
| D90S3GC | 1748 | 1600 | 545 | 1160 | 620 | 1160 | 410 | 766 | 150 | 4 | 24 |
| D90S3SC | 1750 | 1590 | 605 | 1160 | 680 | 1160 | 407 | 766 | 150 | 4 | 24 |
| D100S3GC | 1757 | 1600 | 545 | 1160 | 620 | 1160 | 410 | 766 | 150 | 4 | 24 |
| D100S3SC | 1780 | 1590 | 605 | 1160 | 680 | 1160 | 407 | 766 | 150 | 4 | 24 |
| D120S3GC | 1988 | 1840 | 655 | 1300 | 730 | 1312 | 442 | 785 | 200 | 4 | 24 |
| D120S3SC | 2053 | 1880 | 655 | 1300 | 730 | 1312 | 442 | 785 | 200 | 4 | 24 |
| D150S3GC | 1988 | 1840 | 655 | 1300 | 730 | 1312 | 442 | 785 | 200 | 4 | 24 |
| D150S3SC | 2023 | 1880 | 655 | 1300 | 730 | 1312 | 442 | 785 | 200 | 4 | 24 |
* پارامترهای بالا تنها برای مرجع بوده و ممکن است بدون اعلام قبلی تغییر کنند.
عملکرد الکتریکی| ولتاژ | فرکانس | ||||||
| نرخ حالت پایدار | نرخ حالت لحظه ای | زمان پایداری | نرخ نوسان | نرخ حالت پایدار | نرخ حالت لحظه ای | زمان پایداری | نرخ نوسان |
| ≤±2.5% | -15% +20% | 1.5 S | ±1% | 5% | ±10% | 5 S | ±0.5% |
| ولتاژ در حالت بی باری 95% تا 105% ولتاژ نامی است | |||||||
نکات مهم:
1. دستگاه ها در حالت عادی با ولتاژ 400 ولت و فرکانس 50 هرتز کار می کنند و دارای جعبه اندازه گیری هستند.
2. دستگاه می تواند با توجه به نیازهای عملکردی کاربر متفاوت بوده و جعبه کنترل متفاوتی برای آن طراحی شود.
3. می توان برای دستگاه ها گواهی بازرسی کشتی CCS و گواهی بازرسی ماهیگیری ZY ارائه کرد.
ژنراتورهای دریایی سری G 180-300 کیلووات ژنراتورهای دریای سری G با موتور دیزل هم خط سری G محصول شرکت موتور دیزل شانگهای به حرکت در می آیند. ژنراتورهای دریایی توسط قایق های ماهیگیری، قایق های مسافری، و دیگر کشتی ها برای تامین نیروی الکتریکی در شرایط خشن مورد استفاده قرار می گیرند. دوام و کارآیی در مورد تولید ژنراتورهای دریایی کلیدی است و این چیزی است که ما در SDEC ارائه می دهیم.
پارامترهای فنی اصلی| مدل | خروجی نامی | خروجی در حالت آماده به کار | مدل موتور | مدل ژنراتور | جریان نامی | مصرف سوخت g/kw.h | ابعاد کلی mm | وزن Kg | |||||
| ب | KW | KVA | KW | KVA | ک | ک | ک | ک | ک | ک | |||
| D180S1GC | 180 | 225 | 200 | 250 | G128ZLCaf1 | MP-H-180-4 | 325A | ≤205 | 2542*911*1649 | 2520 | |||
| D180S1SC | 180 | 225 | 200 | 250 | G128ZLCaf1 | SB-HW4.D-180 | 325A | ≤205 | 2427*911*1620 | 2212 | |||
| D200S1GC | 200 | 250 | 220 | 275 | G128ZLCaf2 | MP-H-200-4 | 361A | ≤205 | 2542*911*1649 | 2540 | |||
| D200S1SC | 200 | 250 | 220 | 275 | G128ZLCaf2 | SB-HW4.D-200 | 361A | ≤205 | 2475*911*1620 | 2277 | |||
| D250S1GC | 250 | 312.5 | 275 | 344 | G128ZLCaf3 | MP-H-250-4 | 451A | ≤210 | 2595*911*1649 | 2650 | |||
| D250S1SC | 250 | 312.5 | 275 | 344 | G128ZLCaf3 | SB-HW4.D-250 | 451A | ≤210 | 2545*911*1620 | 2385 | |||
| D300S1GC | 300 | 375 | 330 | 412.5 | SC15G500CF2 | MP-H-300-4 | 541A | ≤210 | 2700*909*1629 | 2610 | |||
| D300S1SC | 300 | 375 | 330 | 412.5 | SC15G500CF2 | SB-HW4.D-300 | 541A | ≤210 | 2507*987*1629 | 2620 | |||

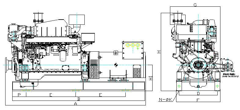
| مدل | A | B | D | E | F | H | H1 | G | P | N | K |
| D180S1GC | 2542 | 2280 | 725 | 850 | 785 | 1649 | 570 | 911 | 280 | 6 | 24 |
| D180S1SC | 2427 | 2300 | 694 | 900 | 794 | 1620 | 540 | 911 | 250 | 6 | 24 |
| D200S1GC | 2542 | 2280 | 725 | 850 | 785 | 1649 | 570 | 911 | 280 | 6 | 24 |
| D200S1SC | 2475 | 2300 | 694 | 900 | 794 | 1620 | 540 | 911 | 250 | 6 | 24 |
| D250S1GC | 2595 | 2280 | 725 | 850 | 785 | 1649 | 570 | 911 | 280 | 6 | 24 |
| D250S1SC | 2545 | 2400 | 694 | 900 | 794 | 1620 | 540 | 911 | 250 | 6 | 24 |
| D300S1GC | 2700 | 2540 | 694 | 900 | 794 | 1629 | 550 | 909 | 250 | 6 | 24 |
| D300S1SC | 2507 | 2360 | 850 | 900 | 950 | 1629 | 550 | 987 | 250 | 6 | 24 |
* پارامترهای بالا تنها برای مرجع بوده و ممکن است بدون اعلام قبلی تغییر کنند.
عملکرد الکتریکی| ولتاژ | فرکانس | ||||||
| نرخ حالت پایدار | نرخ حالت لحظه ای | زمان پایداری | نرخ نوسان | نرخ حالت پایدار | نرخ حالت لحظه ای | زمان پایداری | نرخ نوسان |
| ≤±2.5% | -15% +20% | 1.5 S | ±1% | 5% | ±10% | 5 S | ±0.5% |
| ولتاژ در حالت بی باری 95% تا 105% ولتاژ نامی است | |||||||
نکات مهم:
1. دستگاه ها در حالت عادی با ولتاژ 400 ولت و فرکانس 50 هرتز کار می کنند و دارای جعبه اندازه گیری هستند.
2. دستگاه می تواند با توجه به نیازهای عملکردی کاربر متفاوت بوده و جعبه کنترل متفاوتی برای آن طراحی شود.
3. می توان برای دستگاه ها گواهی بازرسی کشتی CCS و گواهی بازرسی ماهیگیری ZY ارائه کرد.

